Case de Sucesso: Soluções da BFS Engenharia para o modelo híbrido de restaurantes do Grupo Madero.
Case de Sucesso: Soluções da BFS Engenharia para o modelo híbrido de restaurantes do Grupo Madero.
Veja o conteúdo deste post
- Introdução aos modelos de negócio do Grupo Madero.
- A importância de projetos integrados de engenharia para redes de restaurantes com operações híbridas.
- Aspectos da infraestrutura essenciais para o desenvolvimento dos projetos de engenharia.
- Estudo de caso: alterações técnicas necessárias para a operação híbrida Jeronimo & Madero.
1) Sistema de Combate a Incêndios na Exaustão
2) Sistema de Prevenção e Combate a Incêndios
3) Sistema de Gás
4) Sistemas elétricos e de comunicação
5) Instalações Hidrossanitárias
Introdução
Há mais de 10 anos, a BFS Engenharia acompanha o Grupo Madero como parceira estratégica no desenvolvimento dos projetos de engenharia, contribuindo para a expansão e consolidação da marca em todo o Brasil. Nesse período, foram mais de 250 projetos entregues, abrangendo diferentes formatos de restaurantes, como Madero Container, Madero Steak House, Jeronimo e Ecoparada Madero, além de outras marcas do Grupo Madero que foram descontinuadas, cada um com desafios específicos de infraestrutura, operação e padronização de marca.
O sucesso dessa parceria vai muito além da execução técnica: é um trabalho estratégico que permite ao Grupo Madero inovar e evoluir seus modelos de negócio. Um exemplo recente é a implementação dos restaurantes híbridos Jeronimo + Madero, onde duas marcas coexistem em um mesmo espaço, oferecendo versatilidade gastronômica e uma experiência única para o cliente. Em 2025, apenas nesse modelo híbrido, a BFS Engenharia realizou 69 projetos de engenharia, demonstrando sua capacidade de gerenciar múltiplas demandas simultaneamente, com rapidez, precisão e total compatibilização entre os diferentes projetos e sistemas de engenharia, garantindo eficiência operacional e padrão de qualidade em cada unidade.
O conceito híbrido representa a integração entre diferentes operações, combinando o ambiente sofisticado e clássico do Madero Steak House com a proposta ágil e urbana do Jeronimo. Ou seja, exige uma reavaliação de cargas térmicas, demandas elétricas, sistemas de exaustão, rede de gás, consumo hidráulico e estratégias de segurança contra incêndio.
A introdução do modelo híbrido demonstra como a engenharia integrada atua como pilar estratégico, apoiando a expansão da marca e garantindo que cada nova unidade entregue o padrão de excelência que o Grupo Madero consolidou ao longo de mais de uma década.
A importância de projetos integrados de engenharia para redes de restaurantes com operações híbridas.
Nas unidades híbridas Jeronimo + Madero, a compatibilização de projetos é fundamental para que múltiplas operações funcionem de forma eficiente, segura e integrada. Cada restaurante combina conceitos distintos de gastronomia, exigindo atenção especializada em projetos de engenharia.
A BFS Engenharia atua de forma integrada, coordenando disciplinas como, elétrica, hidrossanitário, gás, prevenção e combate a incêndios, garantindo que todos os sistemas conversem entre si. Essa abordagem reduz retrabalhos, otimiza o uso do espaço e mantém a eficiência operacional restaurante, sem comprometer conforto e segurança dos clientes e profissionais que utilizam o ambiente.
Além disso, projetos integrados permitem que a expansão do Grupo Madero seja realizada com maior agilidade e menor risco de inconsistências técnicas. A capacidade de planejar e executar projetos de engenharia e instalações compatíveis com múltiplos conceitos é um dos pilares que garante inovação, versatilidade gastronômica e o sucesso contínuo do modelo híbrido.
Aspectos da infraestrutura essenciais para o desenvolvimento dos Projetos de Engenharia.
Nos modelos híbridos, grande parte das ações realizadas se concentram na cozinha, onde o layout e os equipamentos precisam ser atualizados para atender à nova operação. Essa etapa exige cuidado extremo com a compatibilização de projetos e a fidelidade do projeto de engenharia ao que será efetivamente executado, garantindo que o cliente tenha clareza sobre quais equipamentos e sistemas serão removidos, realocados ou instalados.
Alguns fatores fundamentais incluem:
- Reposicionamento e inserção de equipamentos: ajustar bancadas, fogões, fornos, chapas e outros equipamentos de cozinha para atender simultaneamente às demandas do Madero e do Jeronimo;
- Fidelidade ao projeto: garantir que o que foi planejado nos projetos de engenharia e instalações seja executado de forma precisa, evitando divergências que comprometam a operação do restaurante ou que gerem alto custo de manutenção;
- Otimização de custos e reaproveitamento inteligente: propor soluções que otimizem materiais, equipamentos e estruturas existentes, diminuindo investimentos em obra sem comprometer eficiência e segurança;
- Integração de sistemas: redes elétricas, hidrossanitárias, climatização, exaustão, gás, prevenção e combate a incêndios devem ser compatíveis com o novo layout, garantindo que a operação do restaurante funcione de forma segura e eficiente;
A experiência da BFS Engenharia em engenharia para restaurantes e projetos de instalações permite superar esses desafios, transformando cada cozinha híbrida em um espaço funcional, seguro e preparado para atender a diferentes operações gastronômicas, mantendo o padrão de qualidade do Grupo Madero.
Além desses pontos, prezamos pela transparência técnica e clareza para o cliente, comunicamos de forma detalhada quais alterações serão realizadas, incluindo remoções, realocações e inserções, garantindo transparência e alinhamento de expectativas.
A experiência e o amplo know-how técnico é fundamental para garantir que todas as soluções de engenharia permaneçam continuamente alinhadas às normas vigentes dos órgãos públicos, como concessionárias de energia elétrica, concessionária de gás, companhias de água e esgoto e Corpo de Bombeiros.
A BFS Engenharia garante que cada projeto permaneça continuamente alinhado às atualizações normativas, evitando reaprovações desnecessárias em lojas de rua e assegurando conformidade técnica durante toda a operação. Nos restaurantes localizados em shopping centers, esse conhecimento especializado também permite conduzir as reaprovações internas exigidas pelos próprios shoppings, garantindo que o empreendimento esteja em plena aderência às diretrizes técnicas e operacionais do condomínio. Esse domínio das normas e práticas regulatórias é o que assegura segurança, eficiência e tranquilidade para o cliente em todas as etapas do processo.
Estudo de caso: alterações técnicas necessárias para a operação híbrida Jeronimo & Madero.
Um dos maiores diferenciais da BFS Engenharia é garantir que, independentemente da complexidade da adaptação para o modelo híbrido, todos os projetos mantenham o rigoroso padrão de qualidade do Grupo Madero. Para que isso seja possível, é realizada uma avaliação criteriosa em cada nova unidade, identificando a necessidade técnica de renovar ou redimensionar os sistemas existentes. Não se trata apenas de trocar equipamentos, mas de garantir que a infraestrutura suporte a nova demanda com total segurança e performance.
Confira abaixo, através dos detalhes técnicos do projeto, como essa renovação acontece na prática:
Sistema de CIE (Combate a Incêndio na Exaustão) – Upgrade para Sistema AMEREX
- Estudo de Caso: Realocação Interestadual (Caxias do Sul/RS ➔ Serra Azul/SP)
Um dos pontos mais sensíveis nesta unidade foi a atualização do sistema de combate a incêndio da cozinha. Como observado nos projetos originais, a unidade utilizava um sistema que não faz mais parte do padrão atual do Grupo Madero.
- O desafio: O sistema antigo era subdimensionado para a nova demanda e não atendia aos requisitos de performance atuais do grupo. Com a entrada da operação híbrida, o layout de equipamentos sob a coifa mudou drasticamente.
- A solução: Realizamos o redimensionamento completo do sistema, implementando a tecnologia AMEREX. Este sistema é reconhecido mundialmente pela eficiência em cozinhas industriais, utilizando agente saponificante de rápida resposta.
- A mudança na arquitetura: Nas imagens abaixo, é possível notar que a alteração de equipamentos (chapas, fritadeiras e fogões) para o modelo híbrido exigiu um novo mapa de bicos nebulizadores. Cada ponto de descarga foi recalculado assegurando descarga direcionada do agente extintor sobre os pontos críticos de risco, com resposta rápida em caso de princípio de incêndio.
Isso garante que o padrão de segurança contra incêndio em cozinhas seja mantido integralmente.
Modelo Híbrido: Madero Jeronimo/Madero SP – Serra Azul
Modelo antigo: Madero Container Caxias do Sul
Sistema de Prevenção e Combate ao Incêndio (PCI)
- Estudo de Caso: Realocação Interestadual (Belo Horizonte/MG ➔ São Pedro da Aldeia/RJ)
Este é um exemplo perfeito da versatilidade logística do Grupo Madero aliada à precisão técnica da BFS Engenharia. Realocar uma unidade de um shopping em Belo Horizonte (MG) para uma operação de rua em São Pedro da Aldeia (RJ) exige mais do que logística; exige uma "tradução" completa das normas de segurança contra incêndio.
A engenharia de realocação permite que uma estrutura que operava no Minas Shopping (BH) ganhe uma nova vida como uma unidade híbrida em São Pedro da Aldeia (RJ). No entanto, mudar de estado significa mudar de jurisdição normativa. No projeto de PPCI (Projeto de Prevenção e Combate a Incêndio), essa transição exige um trabalho minucioso de atualização e compatibilização.
Atualização de Padrões e Simbologias
Ao assumirmos esse projeto de realocação, a primeira etapa foi a padronização visual e técnica.
- Modernização de Blocos: Substituímos os blocos e simbologias antigos pelos novos padrões adotados pelo Grupo Madero. Isso garante que a leitura do projeto seja universal para as equipes de manutenção e execução, além de facilitar a aprovação junto ao CBMERJ.
- Clareza Técnica: A atualização dos blocos não é apenas estética; ela traz informações técnicas mais precisas sobre cada componente de segurança (extintores, sinalizações de abandono e iluminação de emergência).
- Readequação do Sistema de Detecção de Incêndio
Como a unidade passou a ser híbrida (Madero + Jeronimo), o layout interno sofreu alterações significativas para comportar as duas operações.
- Novo Mapa de Detecção: O sistema de detecção de fumaça e calor foi integralmente readequado. Sensores foram reposicionados para cobrir as novas áreas de risco e garantir que não existam "pontos cegos" no novo layout.
- Compatibilização entre Disciplinas: O grande desafio aqui foi garantir que a nova rede de detecção não conflitasse com as novas rotas de exaustão ou infraestrutura elétrica. A abordagem integrada da BFS Engenharia permitiu que o sistema de segurança "conversasse" perfeitamente com a nova arquitetura híbrida.
Modelo Híbrido: Madero/Jeronimo RJ - São Pedro da Aldeia
Modelo Híbrido: Madero Container Minas Shopping
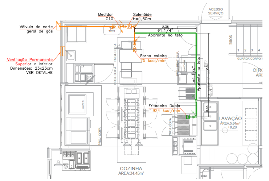
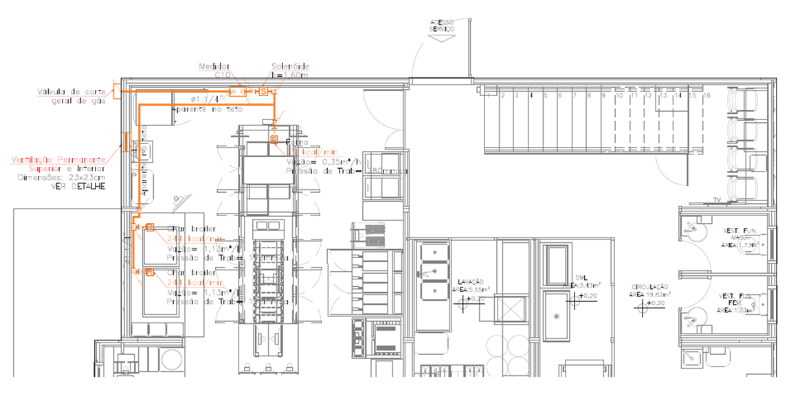
Sistema de Gás: Inteligência de Adaptação e Continuidade Operacional
- Estudo de Caso: Realocação Interestadual (Criciúma/SC➔ Sorocaba/SP)
No projeto do Madero Container HIB - Juvenal Campos (vinda de uma operação em Criciúma/SC), a disciplina de gás foi um dos pontos altos da compatibilização. Em projetos de realocação, o desafio é aproveitar a infraestrutura existente sem comprometer a segurança, a operação e a demanda dos novos equipamentos.
Metodologia de projeto: o que é novo, existente ou a remover
Para garantir uma execução de obra limpa e sem erros, adotamos uma diferenciação visual rigorosa no projeto:
- Existente: Tubulações e componentes que permanecem na estrutura do container.
- A Remover: Pontos de gás da configuração antiga (Criciúma) que não atendem mais ao novo layout.
- Novo: Novas ramificações e pontos de consumo instalados para atender especificamente aos equipamentos do modelo híbrido (novas chapas e fogões).
Essa clareza permite que os instaladores em campo saibam exatamente onde intervir, evitando o desperdício de materiais e garantindo a estanqueidade do sistema.
Nova central de GLP e autonomia energética
- Normativas Rigorosas: A central foi locada estrategicamente para atender às distâncias de segurança da IT 28 do CBMSP, garantindo o afastamento necessário de ralos e fontes de ignição.
- Dimensionamento Estratégico: Projetamos a central para oferecer autonomia real. O dimensionamento foi calculado para suportar o pico de demanda das duas marcas (Madero + Jeronimo) simultaneamente, garantindo que a operação nunca seja interrompida por falta de pressão ou pausas extremas para a troca de recipientes.

Modelo Híbrido: Madero/Jeronimo Container - Juvenal Campos (Sorocapa/SP)

Modelo Antigo: Madero Container (Criciúma/SC)
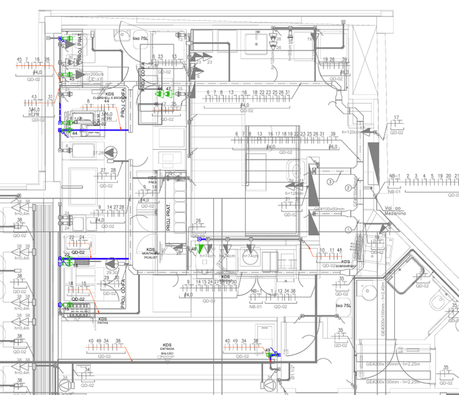
Sistema Elétricos e de Comunicação: A inteligência conectada da operação híbrida
No modelo híbrido, a complexidade da infraestrutura elétrica e de dados é elevada ao máximo. Com a coexistência das marcas Madero e Jeronimo, a demanda por carga elétrica aumenta e a rede de comunicação precisa ser impecável para suportar os sistemas de autoatendimento (totens), PDVs e a integração de pedidos de ambas as operações.
Infraestrutura Compartilhada e Inteligente
Um dos grandes diferenciais técnicos na abordagem da BFS para o Grupo Madero é a otimização da infraestrutura. Em vez de sistemas isolados que gerariam poluição visual e aumento de custos, trabalhamos com a infraestrutura de comunicação compartilhada com a de elétrica.
- Eficiência de Montagem: O uso de eletrocalhas e conduletes dimensionados para ambas as disciplinas agiliza a execução da obra e facilita manutenções futuras.
- Segurança de Dados: Mesmo compartilhando o caminho físico (infraestrutura), garantimos o isolamento necessário para evitar interferências eletromagnéticas, assegurando que o sistema de dados do restaurante opere em alta performance.
Personalização via Planta de Pontos
Cada nova unidade híbrida possui uma dinâmica própria. Para garantir que nenhum totem de autoatendimento ou terminal de cozinha fique no lugar errado, trabalhamos com um fluxo de precisão:
- Recebimento da Planta de Pontos: O Grupo Madero define a necessidade operacional (onde estarão as telas, caixas, impressoras de cozinha e roteadores).
- Alocação e Dimensionamento: A BFS Engenharia projeta a alocação exata desses pontos em cada novo projeto, calculando a carga necessária e o melhor trajeto da fiação.
- Flexibilidade Híbrida: Como o Jeronimo utiliza muito o autoatendimento e o Madero Steak House foca no atendimento de mesa, o projeto elétrico precisa equilibrar essas duas realidades, garantindo energia estável tanto para os equipamentos de alta potência da cozinha quanto para a sensível eletrônica de rede.
Destaque Técnico: A compatibilização elétrica é o que permite que a cozinha híbrida receba novos equipamentos (como fritadeiras de alta eficiência ou fornos combinados) sem que haja sobrecarga nos circuitos existentes, mantendo a continuidade operacional 24/7.

Modelo Antigo: Madero Container (Criciúma/SC)
Instalações Hidrossanitárias
Se a elétrica é o sistema nervoso, as instalações hidrossanitárias são o sistema circulatório do restaurante. No modelo híbrido Jeronimo + Madero, a engenharia da BFS Engenharia foca em garantir que o aumento do volume de operação não comprometa a higiene, a conformidade ambiental e a fluidez do trabalho na cozinha.
Adequação de Layout e Pontos de Consumo
A transição para o modelo híbrido exige, muitas vezes, o reposicionamento de cubas, máquinas de lavar louça e áreas de preparo.
- Ajustes Estratégicos: Realizamos a análise da infraestrutura existente para validar se os pontos de água e esgoto estão alinhados ao novo layout da cozinha.
- Flexibilidade Técnica: Sempre que possível, as soluções de engenharia visam o reaproveitamento das tubulações principais, realizando apenas as derivações necessárias para atender aos novos equipamentos de preparo do Madero ou do Jeronimo, otimizando o tempo de obra.
Gestão de Resíduos e Caixa de Gordura
Um dos pontos mais críticos em restaurantes de alto volume é a gestão de gordura.
- Dimensionamento e Posicionamento: Avaliamos se a posição e a capacidade da caixa de gordura atual são adequadas para a nova demanda da cozinha híbrida. A gordura proveniente da operação de chapas (comum no Jeronimo) e dos preparos do Madero Steak House exige um sistema de retenção eficiente para evitar entupimentos e garantir que o efluente descartado esteja rigorosamente dentro das normas das companhias de saneamento.
- Conformidade Ambiental: Garantimos que todo o caminhamento do esgoto gorduroso até o tratamento preliminar seja feito de forma estanque e acessível para a limpeza periódica, evitando paradas inesperadas na operação por problemas de refluxo.
Segurança e Higienização
Além do esgoto, o projeto hidrossanitário contempla o abastecimento de água fria e quente com pressão adequada para os equipamentos de higienização. Em modelos de realocação, a BFS Engenharia revisa todo o dimensionamento de reservatórios e recalque para assegurar que a unidade híbrida tenha autonomia e performance, independentemente da localização geográfica ou do tipo de imóvel (shopping ou rua).

Modelo Hibrido: Madero/Jeronimo Container – Juvenal Campos (Sorocaba/SP)
Conclusão
O modelo híbrido entre o Madero e o Jeronimo, do Grupo Madero, mostra como a engenharia pode ser decisiva para transformar uma ideia em uma operação eficiente e sustentável. Quando bem projetado, esse formato reduz custos de instalação, melhora o aproveitamento dos espaços e garante que todos os ambientes, especialmente cozinhas e áreas técnicas, funcionem com fluidez, segurança e conforto para clientes e colaboradores.
Por trás desses resultados está a importância dos projetos de engenharia integrada, onde todas as disciplinas: arquitetura, elétrica, hidrossanitário, climatização, exaustão e combate a incêndio. são compatibilizadas de forma cuidadosa. Essa integração é o que permite que o modelo híbrido funcione sem sobreposições, conflitos técnicos ou retrabalhos. A compatibilização entre essas áreas garante que os sistemas conversem entre si, que os fluxos da operação de restaurante sejam eficientes e que a unidade atenda às normas e às expectativas de desempenho do Grupo Madero.
Com um trabalho construído ao longo de mais de 10 anos, a BFS Engenharia segue como uma parceira estratégica na expansão do Grupo Madero, contribuindo com responsabilidade, cuidado e precisão técnica. Cada novo projeto híbrido reforça o compromisso de entregar soluções que respeitam a identidade da marca e apoiam seu crescimento de forma estruturada e segura. E, acima de tudo, a
BFS Engenharia trabalha para que todas as possibilidades do Grupo Madero se tornem realidade, transformando soluções em operações funcionais e seguras.
Conteúdo desenvolvido por João Cláudio Ortiz dos Santos, Acadêmico de Engenharia Civil e Projetista.
Compartilhe esta postagem


Sistema de Detecção de Incêndio: tipos, aplicações e como escolher o mais adequado para cada projeto
























