Sprinklers: o que é, como funcionam, quando utilizar e quais os tipos?
Sprinklers: o que é, como funcionam, quando utilizar e quais os tipos?
Veja o conteúdo deste post
- O que é o sprinkler?
- Como funciona o sistema de sprinkler?
- Quais são os componentes do sistema de sprinklers?
- Quais as aplicações do sprinkler?
- Quando utilizar sprinkler?
- Obrigatoriedade do uso de sprinkers.
- Estudo de caso.
Os sistemas de sprinklers, também conhecidos como chuveiros automáticos, desempenham um papel crucial no projeto preventivo contra incêndios, sendo utilizado em diversos tipos de empreendimentos. Neste artigo, vamos explorar as principais informações que você precisa saber sobre os sprinklers.
O que é sprinkler?
O sistema de sprinkler é uma medida de segurança ativa, composto por pequenos dispositivos de chuveiros automáticos, que tem como objetivo manter a segurança de uma edificação, auxiliando no combate de focos de incêndio e evitando a sua propagação.


Quais são os componentes do sistema de sprinkler?
Sistema de Bombas: É através do sistema de bombas que se garante a pressão e a vazão necessárias para o funcionamento dos sprinklers. O tipo e a quantidade muda de acordo com a legislação estadual, mas de modo geral, ela é composta por uma principal elétrica, uma de pressurização, jockey, e uma reserva – podendo ser a combustão, elétrica, ou outra fonte de energia, como os geradores.

VGA: A Válvula Governo e Alarme é um conjunto de equipamentos que tem como função dividir a rede de sprinklers e seu alarme em áreas. A quantidade de VGA vária de acordo com as áreas da edificação. Quando a água passa pelo sistema é acionado um alarme que informa que o sistema está em funcionamento (indicando um possível sinistro). A partir da VGA é possível identificar a área onde o sprinkler está em atuação e realizar manutenções na rede pois, por meio dela, é possível despressurizar o sistema de sprinkler.

Dreno: Junto ao sistema de sprinklers também é instalado o dreno, que tem a finalidade de drenar a água da rede em que precisa-se fazer alguma intervenção no sistema ou o teste de pressurização e vazão da rede.
Chuveiros automáticos: O chuveiro atua quando há mudança de temperatura do ambiente. Dentro de sua ampola ou bulbo contém um líquido expansivo e uma bolha de ar, o calor produzido durante o foco de incêndio causa a expansão do líquido e a extinção do ar, rompendo o vidro e acionando automaticamente o chuveiro.

Quais as aplicações do sprinkler?
No mercado, existem diversos tipos de bicos de chuveiros automáticos que se rompem com diferentes temperaturas. Nos casos mais comuns, utiliza-se bicos com temperaturas de 68ºC, para áreas como: salas comerciais, galpões logísticos, residencial, escritórios, shopping onde não há atividades com altas temperaturas. Já para áreas de cocção, como cozinhas, é recomendado o uso de bicos de 79ºC, pois dependendo da quantidade de equipamentos de cocção, como fogões, fornos, fritadeiras, entre outros, a temperatura do ambiente poderá ser maior que 68ºC. Existem também, os bicos para ambientes de baixa temperatura, como câmaras frias e açougues, evitando o congelamento da água na tubulação.
A temperatura dos sprinklers deve ser definida conforme a área de aplicação.

Quando utilizar sprinklers?
A obrigatoriedade do uso de Sprinklers depende da legislação do Corpo de Bombeiro de cada estado, variando de acordo com o tipo de atividade, área da edificação e altura.
Os sistemas de chuveiros automáticos também são usados como estratégia de compensação de outras medidas de segurança, por exemplo: em uma edificação onde não é possível atender o caminhamento máximo percorrido até chegar a uma área segura, pode-se usar chuveiros automáticos para aumentar esse caminhamento.
Supomos que uma pessoa em uma edificação de uso comercial - um shopping – tenha que percorrer 60 metros. Porém, a legislação permite somente 55 metros. Em alguns estados, como Santa Catarina, São Paulo e Paraná, é possível aumentar essa distância com a implementação de Sprinkler.
Em Santa Catarina, também é possível fazer a compensação de compartimentação de áreas em substituição de chuveiros automáticos e detecção. Algumas seguradoras exigem que seu segurado implemente essa medida de segurança e sigam normas internacionais como a NFPA 13 (National Fire Protection Association) além das normas Brasileiras NBR (Normas Brasileiras Regulamentadoras), mesmo que pela legislação estadual não seja necessário o projeto de Sprinklers.
Já em Shoppings Centers, é comum o shopping exigir do locatário a implementação do sistema de chuveiros automáticos, isso devido à atividade e área da edificação que geralmente enquadra em necessidade da instalações de sprinklers.
Mas como saber quando sou obrigado(a) a implementar esse sistema?
De modo geral, a legislação estadual vai nos dizer se há ou não a obrigatoriedade de instalação, podendo ser consultado no site dos bombeiros militares de cada estado. No site do bombeiro militar do estado de Santa Catarina, é possível conferir todas as instruções normativas (IN).
Na IN 01 parte 2 – sistema de medida de segurança, tabela 05, descreve-se as medidas de segurança obrigatório.

Estimativa de custo em lojas de shopping.
A BFS Engenharia conta com um time especializado em projeto preventivo contra incêndios, atuamos em diversas áreas, como: shopping center, rede de supermercados e varejos, galpões logísticos, escritórios administrativos, residencial, aeroportos entres outras atividades. Neste artigo, compartilharemos três empreendimentos situados em shopping center que contaram com as soluções de rede de sprinklers da BFS Engenharia:
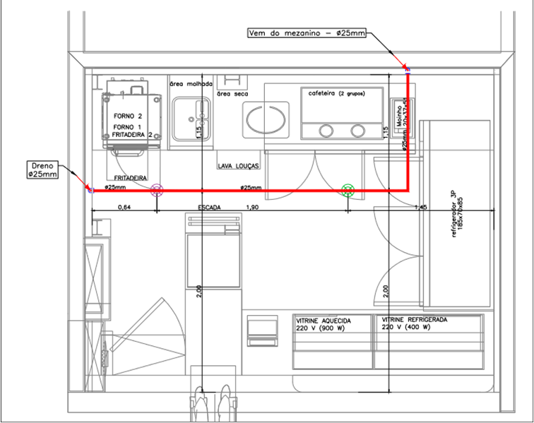
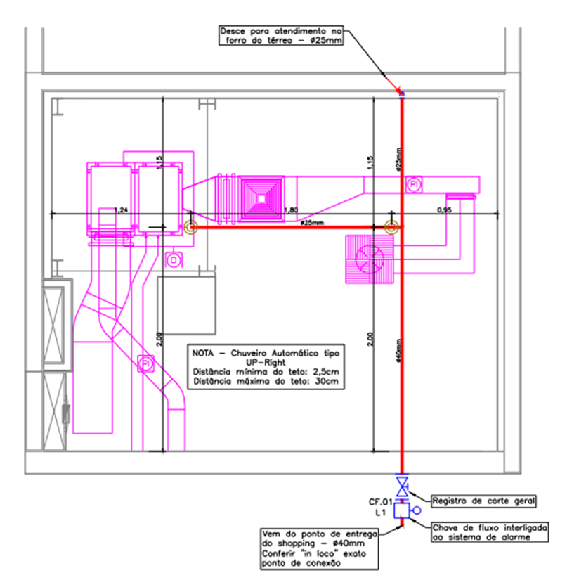
Projeto 01: Restaurante com 31,86 m² de área total.
Fonte: Desenvolvimento próprio - BFS Engenharia
Para esse projeto foram previstos três tipos de bico:
- 01 bico tipo padrão pendente, bulbo amarelo 79°C;
- 01 bico tipo padrão Up-right, bulbo amarelo 79°C;
- 02 bicos bico tipo padrão bulbo verde 93ºC.
Para estimativa de custo, existem algumas variantes como tipo de material, dimensionamento eficiente do sistema, tipos de bombas usadas, tipos de bicos recomendados, fornecedores, fatores logísticos, entre outros.
Nesse projeto, estima-se um custo de instalação de R$ 6.500,00, aproximadamente R$ 1.625,00 por bico.
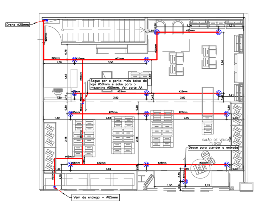
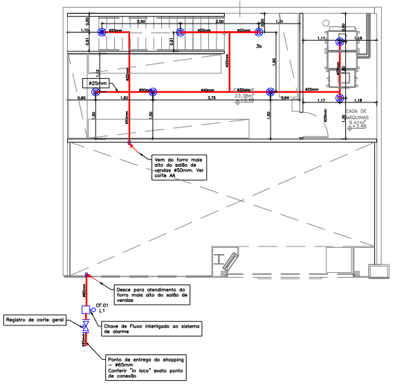
Projeto 02: Loja Varejista, com 112,72 m² de área total.
Fonte: Desenvolvimento próprio - BFS Engenharia
Para esse projeto foi previsto apenas um tipo de bico:
- 22 bicos tipo padrão pendente, bulbo vermelho 68º.
Nesse projeto, estima-se um custo de instalação de R$ 24.200,00, aproximadamente R$ 1.100,00 por bico.
Projeto 03: Loja Varejista, com 487,57 m² de área total.
Fonte: Desenvolvimento próprio - BFS Engenharia
Para esse projeto foi previsto apenas um tipo de bico:
- 57 bicos tipo padrão pendente, bulbo vermelho 68º.
Nesse caso, estima-se um custo de instalação de R$ 68.400,00, aproximadamente R$ 1.200,00 por bico.
Analisando os resultados obtidos, pode-se observar que há uma relação entre a quantidade e tipo de bico do sprinkler para a estimativa do custo de execução, mesmo tendo tubulações e outros elementos compondo o custo. No primeiro exemplo, apesar da menor quantidade de bicos e tubulações, possui o custo mais alto se compararmos o custo por bico. Além disso, ao comparar o 2º e o 3º exemplo, há uma diferença de R$100,00 por bico, sendo que em ambos são previstos o mesmo tipo. Isto é, a diferença está relacionada à quantidade de bicos em um mesmo ramal (tubulação). Quanto mais bicos acoplados a um ramal, maior é a bitola da tubulação.
Conclusão
Podemos concluir que cada projeto é único, sendo necessário ser desenvolvido por um profissional da área, pois cada caso é um caso, cada estado e cada shopping tem suas normas. Um bom projeto além de assegurar a prevenção e segurança dos seus usuários, pode proporcionar uma significativa economia na compra de materiais e na execução.
Se este conteúdo te ajudou a entender melhor sobre o sistema de sprinklers, compartilhe com alguém que também tenha interesse neste assunto.
Conteúdo desenvolvido por Juliane Correa da Silva, Arquiteta e Urbanista especialista em Projeto Preventivo Contra Incêndios na BFS Engenharia.
Compartilhe esta postagem


Sistema de Detecção de Incêndio: tipos, aplicações e como escolher o mais adequado para cada projeto






























